

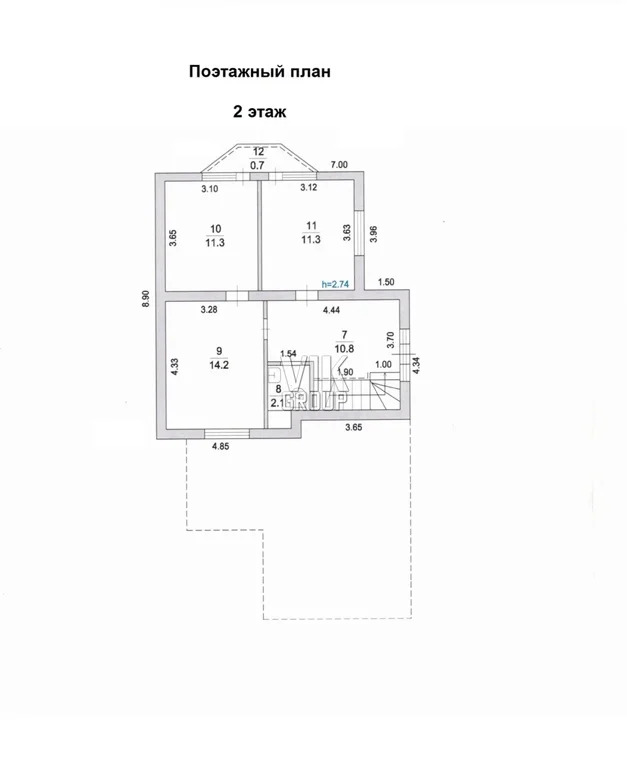
Продается прекрасный двухэтажный (трехуровневый) коттедж в деревне Поздняково д 135 Можайского района Московской области, вблизи Можайского водохранилища. Дом возведен в 2008г по индивидуальному проекту. Удобная и функциональная планировка, общей площадью с учетом холодных помещений 200кв. м. Через просторную террасу, с кованными перилами, попадаешь в уютный дом. На 1 этаже прихожая (18кв.м), холл (12кв.м) с входом в теплый гараж (28кв.м) с автоматическими воротами; роскошная кухня-столовая (15кв.м) с итальянским кухонным гарнитуром выполненный по индивидуальному заказу, барной стойкой из натурального дерева ручной работы и встроенной техникой (посудомоечная машина, вытяжка, варочная газовая панель, испанская эл. духовка, холодильник). Прекрасную гостиную (25кв.м) украшает кирпичный камин- печь (установлен на фундаменте) сделанный по спецзаказу, большие эркерные окна, художественный ламинат. Красивая деревянная арка соединяет пространство между кухней и гостиной. Совмещенный санузел (5кв.м) с угловой ванной, отделан светлой плиткой. Бойлерная. На 2 этаж ведет широкая деревянная лестница с резными балясинами. Необычно красиво смотреться на стене большая фреска в стиле прованс. На этаже холл (11кв.м) с выходом на просторную открытую террасу с кованными перилами и шикарным панорамным видом. Смежно-изолированные комнаты: 15-13-13кв.м. Две спальни объединены выходом на белоснежный балкон с каменными балясинами. Санузел. На мансардном уровне- помещение свободного назначения (50кв.м), обшит и утеплен вагонкой, с интересными пирамидальными окнами. Высота потолков от 2,8 до 3м. Дизайнерский ремонт выполнен из высококачественных материалов: на полу антивандальный художественный ламинат и паркетное покрытие, на окнах пластиковые трех камерные солнцезащитные стеклопакеты, кондиционеры, на радиаторах отопления - деревянные экраны, установлена система умного дома, сигнализация, видеонаблюдение с датчиками движения в доме и по территории участка. Все действующие коммуникации заведены в дом: электричество (15кВт, тариф -деревенский, 3-х фазный), два двухконтурных котла газовый и электрический, бойлер пр-во Германии на 200л, американская система очистки воды- Гидровелл, газгольдер на 5,5кубов, переливной септик (3 ж/б кольца), колодец (16 ж/б колец), немецкий гидроаккамулятор 500л, аква сторож от водопротечек. Кадастровый № 50:18:0040230:801. Конструктив дома - газосиликатные блоки, толщина стен – метр, внешне отделан декоративной штукатуркой, крыша – металлочерепица, опалубка глубиной 25см, ленточный фундамент глубиной 1,8м. Участок ровный, правильной формы 11 соток, огорожен двухметровым металлическим забором с автоматическими воротами. Ухоженная территория, по дорожкам установлены красивые фонари, искусственно-декоративный пруд с фонтаном, произрастают: жасмин, яблоня, груши, каштан, Сумах, крыжовник. На участке построен летний одноэтажный домик (30кв.м) с мангальной зоной (ж/б плиты, стены-пеноблок, стеклопакеты с сеткой, мягкая кровля, красивый флюгер), хозблок 40кв.м, широкий навес. Категория: земли населенных пунктов, использование: для ведения садоводства. Кадастровый № 50:18:0040230:165. Развитая инфраструктура в г Можайске (20км): школы, детские сады, поликлиники, магазины. Дом расположен рядом с Можайским водохранилищем, местом для рыбалки и охоты, деревню окружает смешанный лес. Отличная транспортная доступность 104км от МКАД по Минскому шоссе. 1 собственник, полная стоимость в ДКП.
16500000 руб. | 249969 $ | 219060 €